Beschrijving

Fenomenaal wonen in het "groen en nabij de zee", in het prachtige Aerdenhout vlakbij Haarlem! Deze volledig gerenoveerde en fraai uitgebouwde tussenwoning is van alle gemakken voorzien en desgewenst direct te betrekken. Deze woning verkeert namelijk in zeer goede staat evenals de tuin voor en achter. In zowel de voor- als de achtertuin is alle privacy en desgewenst de zon of de schaduw. Buiten dit mooie huis is ook de ligging op 10 minuten fietsen van de duinen en het strand vanzelfsprekend een echte USP!  Met de uitgebouwde lichte woonkamer, vier slaapkamers en twee badkamers is dit echt een parel te noemen. Alle benodigde zaken zoals winkels, scholen, sportfaciliteiten etc. zijn op korte afstand bereikbaar. Wij hopen u te zijner tijd met trots te mogen rondleiden aan de VELDLAAN 9!

Indeling:

Begane grond:
De zonnige grote voortuin leidt naar de voordeur. In het entree bevindt zich een ingebouwde garderobekast, meterkast, trapopgang naar boven en een fraai toilet met fonteintje. Vanuit deze hal wordt via een moderne glazen deur met zwart staal de lichte uitgebouwde woonkamer bereikt. Hier ligt een uiterst fraaie massief houten planken vloer, strak gestucte muren en dito plafonds. Het sfeervolle zitgedeelte is georiënteerd op de achtertuin en voorzien van openslaande deuren. Ook voorzien van speelse details zoals strakke nisjes voor decoratie. 

De ruime lichte keuken is aan de voorzijde van de woning gelegen, deze is modern, voorzien van alle gemakken en een mooi eiland (kook en nat). Vanzelfsprekend is de keuken voorzien van de nodige inbouwapparatuur, zoals een 4-pits gastoestel met additionele wokbrander, afzuigkap, combi-oven/magnetron, koelkast, vriezer en Quooker. Al kokend is er een mooi zicht op de zonnige voortuin.

1ste verdieping:
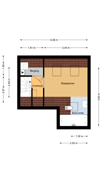
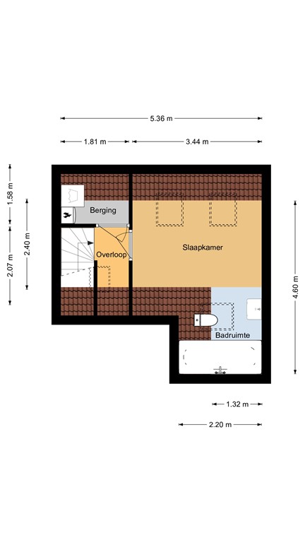
Via de trapopgang in de hal wordt de 1ste verdieping bereikt. De overloop biedt toegang tot 3 slaapkamers en de badkamer. Aan de achterzijde van de woning bevinden zich de master-bedroom en een kleine slaapkamer (momenteel in gebruik als werkkamer), en aan de voorzijde bevinden zich een slaapkamer en de badkamer. De badkamer is licht en speels door de balken en de toilet-nis, verder een inloopdouche en wastafel en voldoende ruimte voor een kast voor het opbergen van bijvoorbeeld toiletartikelen en handdoeken. Net als in het toilet beneden is hier gebruik gemaakt van exclusief tegelwerk en strak gestucte wanden. 

Qua vloerafwerking is deze gehele verdieping voorzien van modern "sisal" en ook de trappen zijn hiermee bekleed. De wand- en plafondafwerking bestaat hier ook uit strak stucwerk.

2de verdieping:
Lichte overloop (door een Velux dakraam) en deze biedt toegang tot de wasruimte met opbergruimte, waar ook de cv-ketel is gesitueerd. Het betreft een Remeha CV-ketel van 2011. Verder op deze verdieping een riante slaapkamer met badkamer "ensuite". Op deze kamer is er lichtinval van beide kanten door meerdere Velux-ramen (drie stuks). De badkamer is voorzien van een ligbad, hangend toilet en wastafelmeubel. Ook hier is het bad weer in een knusse nis geplaatst wat het geheel erg mooi maakt. Het tegelwerk, de gestucte wand- en plafondafwerking en de "sisal" vloerafwerking is ook op deze verdieping consequent doorgevoerd.
Tuin en parkeergelegenheid:
Sfeervolle zonnige afgesloten voortuin (Zuid-West) is strak aangelegd en biedt alle privacy. De knusse achtertuin (Noord-Oost) beschikt over een schuur en heeft een achterom. Ondanks het feit dat de achtertuin grotendeels is betegeld, is deze ook erg groen. In de straat en de nabije omgeving bevindt zich meer dan genoeg openbare parkeergelegenheid.

Bijzonderheden:
- Geheel gerenoveerd in 2015 (gehele leidingwerk & electra zijn vervangen)
- De woning is goed geïsoleerd middels muur- en dakisolatie en voorzien van hardhouten kozijnen en dubbelglas
- Tuingerichte woon-, leef- en eetkamer met openslaande deuren
- BG is voorzien van inbouw-spots
- Moderne strakke keuken met composiet blad de diverse inbouwapparatuur dateert uit 2015
- Maar liefst 4 slaapkamer en 2 badkamers
- Beide badkamers zijn voorzien van vloerverwarming
- Remeha CV-ketel 2011 (jaarlijks onderhoud)
- Meterkast: 8 groepen & 2 aardlekschakelaar
- Dak (nieuwe dakbedekking/bitumen dakkapel, daknok, dakraam sponzen gedaan in 2025)
- Buiten schilderwerk is gedaan in 2020.
- Energielabel C (dmv nieuwe ketel en zonnepanelen te verhogen naar B)
- Overdracht in desgewenst spoedig mogelijk / in overleg Q2 2026

Wonen op een geweldige plek in het groene Aerdenhout vlakbij Haarlem, de duinen en het strand. Voor stellen of gezinnen écht een geweldige plek om te wonen: je vindt er vier basisscholen en diverse middelbare scholen in de nabije omgeving, diverse speeltuinen, de hockeyvelden van Rood-Wit en diverse andere sportfaciliteiten. Het gezellige en knusse winkelcentrum van Aerdenhout met diverse delicatessen winkels en een Albert Heijn, en het station Heemstede-Aerdenhout (naar o.a. Amsterdam, Schiphol, Leiden) zijn binnen een paar minuten fietsen of lopen goed en snel bereikbaar. De duinen en het strand bevinden zich op slechts 10 minuten fietsen. Al met al een heerlijk, goed onderhouden en modern huis op een hele mooie locatie!

*** WIJ KIJKEN ERNAAR UIT U SPOEDIG IN DEZE FRAAIE, SFEERVOLLE  TUSSENWONING, PERSOONLIJK TE MOGEN RONDLEIDEN & ZIEN UW AANVRAAG VOOR BEZICHTIGING DAN OOK HEEL GRAAG MIDDELS FUNDA TEGEMOET! ***

Toelichtingsclausule NEN2580

De meetinstructie is gebaseerd op de NEN2580. De meetinstructie is bedoeld om een meer eenduidige manier van meten toe te passen voor het geven van een indicatie van de gebruiksoppervlakte. De meetinstructie sluit verschillen in meetuitkomsten niet volledig uit, door bijvoorbeeld interpretatieverschillen, afrondingen of beperkingen bij het uitvoeren van de meting.

* Deze informatie is door ons met de nodige zorgvuldigheid samengesteld. Er wordt echter geen enkele aansprakelijkheid aanvaard voor enige onvolledigheid, onjuistheid of anderszins, dan wel de gevolgen daarvan. Alle opgegeven maten en oppervlakten zijn indicatief.

* Er is pas overeenstemming bereikt op het moment dat de door FEMME MAKELAARS opgestelde koopovereenkomst door beide partijen is beoordeeld en ondertekend.

Kenmerken