Beschrijving
Fraai uitgebouwde en zeer hoogwaardig afgewerkte tussenwoning met sfeervolle achtertuin met een mooie overkapping en een houten berging. Dit betreft een mooie locatie in de woonwijk Middenwillens aan de noordoostzijde van Gouda, op zo’n 2 kilometer van het stadscentrum. Deze ruim opgezette wijk heeft niet alleen zelf veel groen, maar ligt ook bijna direct tegen het Goudse Hout met daarachter de Reeuwijkse plassen. Dichtbij NS station Goverwelle, scholen, winkels en uiteraard is Gouda zeer centraal gelegen in de Randstad met een goede verbinding qua uitvalswegen naar de grote steden zoals o.a. Rotterdam, Den Haag en Utrecht.
Indeling:
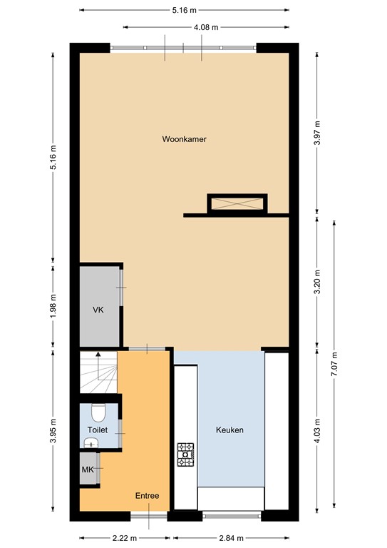
Begane grond:
Op de begane grond: Ruime en smaakvol entree met garderobe hoek, meterkast (10 groepen & 3 aardlekschakelaars), mooi toilet en trapopgang naar de eerste verdieping. In de Woonkamer is een muur geplaatst (room-divider) die zorgt voor een apart zit- en eetgedeelte. Het zitgedeelte is uitermate sfeervol, bevindt zich aan de achterzijde met zicht op de achtertuin en is voorzien van een modern vormgegeven gashaard. De openslaande deuren geven toegang tot de sfeervolle tuin.
De ruime luxe & strakke keuken is gesitueerd aan de voorzijde van de woning en staat in open verbinding met het eetgedeelte. Keuken in U-opstelling is zeer riant. De kleurstelling betreft licht grijs kastwerk met zwart beslag en een stijlvol marmer-look composiet blad. Qua inbouwapparatuur is de keuken (2022) voorzien van o.a. ebroken wit met dik, fraai composiet blad in zwart en voorzien van diverse inbouwapparatuur: o.a. inductiekookplaat, afzuigkap, koelkast XL, vrieskast XL, vaatwasser, stoomoven en combi: oven / magnetron.
De gehele begane grond is voorzien van vloerverwarming en van een robuuste eiken planken vloer. De wandafwerking is strak gestuct evenals de plafonds.
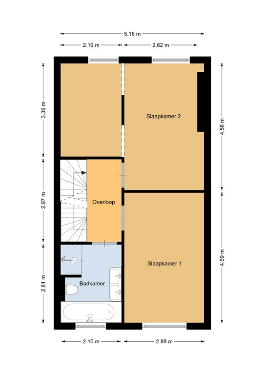
1ste verdieping:
Overloop, aan de achterzijde de zeer luxe master-bedroom met een riante walk-“around”-closet (hiervoor is de kleine slaapkamer opgeofferd). Aan de voorzijde bevinden zich nog een ruime slaapkamer en de luxe uitgevoerde badkamer met een ruime inloopdouche, bad (whirlpool) met ingebouwde tv, wastafelmeubel met 2 wasbakken en grote laden, design-radiator en hangend toilet. Kleurstelling: wit/antraciet grijs. De gehele 1ste verdieping is voorzien van een hoofwaardige PVC-vloer met hout-motief.
2de verdieping:
Voorzolder, met prachtige uitgeruste waskamer voorzien van raam, hier zijn ook de cv-ketel (HR-ketel van Intergas), mechanische ventilatie en het aansluitpunt ten behoeve van de zonnepanelen (10 zonnepanelen) gesitueerd. Een zeer ruime slaapkamer met dakkapel aan de achterzijde. (in L-vorm). L-vormige slaapkamer met dakkapel aan de achterzijde. Keurig afgewerkte bergruimte achter de knieschotten aan de achterzijde en tevens voldoende bergruimte op de vliering. Ook deze verdieping is voorzien van een mooie PVC vloer. (dezelfde als op de eerste verdieping)
Tuin & parkeergelegenheid:
Keurige voor- en achtertuin, deze zijn grotendeels betegeld en voorzien van borders en tuinverlichting. De achtertuin is zonnig en voorzien van een ruime schuur links achterin de tuin en over de gehele achter breedte is een sfeervolle overkapping gerealiseerd. Hier bevindt zich sinds vorig jaar dec 2025 ook een sauna (deze is ter overname) Er is een buitenkraan en een achterom aanwezig. Openbare parkeergelegenheid voor en rondom de woning.
WEGENS TECHNISCHE FOUT WORDEN DE PLATTEGRONDEN NIET VERMELD FUNDA DEZE STAAN ECHTER WEL VERMELD OP WWW.FEMME-MAKELAARS.NL, excuus voor het ongemak en we streven naar spoedige plaatsing op Funda!
Additionele punten:
-Bouwjaar 2017, zo ook CV, mechanische ventilatie ect.
-Geheel voorzien van hardhouten kozijnen met dubbelglas
-BG voorzien van vloerverwarming en de overige ruimtes van radiatoren
-Alle binnendeuren zijn paneeldeuren
-Beide trappen voorzien van Upstairs en degene van BG naar 1ste verdieping met verlichting
-Alle te openen ramen op de 1ste & 2de verdieping voorzien van horren.
-Voorzien van 10 zonnepanelen (2022)
-Voorzijde geheel voorzien van elektrische rolluiken op zonne-energie (2023)
-De elektrische zonnepanelen achter op de eerste verdieping zijn op elektriciteit (2022)
-Verlaagde plafonds op de BG met geïntegreerde spots
-Keuken en gehele 1ste verdieping is voorzien van mooie shutters (wit)
-Dakkapel met geïntegreerde elektrische rolluiken en plissé gordijnen
-Ketel van merk: Intergas (2017)
-Energielabel A+ of A++
-Overdracht in overleg ca 01-juli-2026
*Wilt u dit prachtige tussenwoning bezichtigen? Dien uw aanvraag gerust in via FUNDA; wij kijken ernaar uit u persoonlijk te ontmoeten en rond te leiden!*
Toelichtingsclausule NEN2580
De meetinstructie is gebaseerd op de NEN2580. De meetinstructie is bedoeld om een meer eenduidige manier van meten toe te passen voor het geven van een indicatie van de gebruiksoppervlakte. De meetinstructie sluit verschillen in meetuitkomsten niet volledig uit, door bijvoorbeeld interpretatieverschillen, afrondingen of beperkingen bij het uitvoeren van de meting.
* Deze informatie is door ons met de nodige zorgvuldigheid samengesteld. Er wordt echter geen enkele aansprakelijkheid aanvaard voor enige onvolledigheid, onjuistheid of anderszins, dan wel de gevolgen daarvan. Alle opgegeven maten en oppervlakten zijn indicatief.
* De gegeven informatie is met zorg samengesteld, maar er wordt geen aansprakelijkheid aanvaard voor onvolledigheid, onnauwkeurigheid of gevolgen daarvan. Alle maten en oppervlakten zijn indicatief.
* Er is pas overeenstemming zodra de door FEMME MAKELAARS opgestelde koopovereenkomst door beide partijen is beoordeeld en ondertekend.
Plattegronden
BG Middenwillenseweg 115 (2D).jpg
1e Middenwillenseweg 115 (2D).jpg
2e Middenwillenseweg 115 (2D).jpg
Vliering Middenwillenseweg 115 (2D).jpg
BG Middenwillenseweg 115 (3D).jpg
1e Middenwillenseweg 115 (3D).jpg
2e Middenwillenseweg 115 (3D).jpg
Vliering Middenwillenseweg 115 (3D).jpg
Berging Middenwillenseweg 115 (3D).jpg