Beschrijving

Deze fraai gelegen tussenwoning biedt een prachtig, weids uitzicht over het park en beschikt over een zonnige tuin op het zuiden. De woning is goed onderhouden, biedt uitbouwmogelijkheden aan de achterzijde en beschikt over een ruime berging aan de voorzijde. Aan de achterzijde zijn nieuwe kozijnen geplaatst, de master-bedroom is voorzien van airconditioning, en de moderne, strakke keuken vormt een aantrekkelijk geheel. De woning is gebouwd in 1980 op een perceel van ca. 114 m² en heeft energielabel B. Gelegen in een rustige, ruim opgezette wijk zijn alle benodigde voorzieningen snel en gemakkelijk bereikbaar.

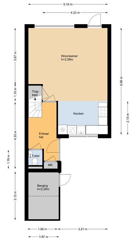
Indeling:
Begane grond:
Op de begane grond bevindt zich een ruime entree met gang, meterkast, open trap naar de verdieping, toilet en toegang tot de woonkamer. De woonkamer is heerlijk licht door grote raampartijen aan zowel de voor- als achterzijde. De zithoek ligt aan de achterkant van de woning, is voorzien van een openhaard en biedt uitzicht op de zonnige achtertuin. Het eetgedeelte en de keuken zijn gesitueerd aan de voorzijde, waar de moderne keuken een fenomenaal uitzicht over het park biedt. De keuken uit 2022 is uitgerust met diverse inbouwapparatuur, waaronder een koel-vriescombinatie, inductie kookplaat, afzuigkap, vaatwasser en oven-magnetron. De wandafwerking op de begane grond bestaat uit spachtelputz en er ligt grotendeels een massief houten vloer.

1e verdieping:
Op de eerste verdieping geeft de overloop toegang tot drie slaapkamers en een verrassend ruime badkamer. Twee slaapkamers liggen aan de achterzijde, één aan de voorzijde. Dankzij de grote ramen zijn de kamers zeer licht. De badkamer is netjes en functioneel, uitgerust met ligbad, douchecabine, wastafelmeubel, toilet en daglichttoetreding.

2e verdieping:
De tweede verdieping bestaat uit een ruime zolderverdieping. De voorzolder biedt plaats aan een was- en droogcombinatie, CV-ketel en bergruimte, met voldoende ruimte voor huishoudelijke taken. De zolderkamer heeft twee dakramen die aan vervanging toe zijn vanwege lekkage (o.a. condens tussen het dubbelglas).

Tuin, berging & parkeergelegenheid:
De tuin is grotendeels onderhoudsvrij, met een ruime voor- en achtertuin. De achtertuin, gelegen op het zuidwesten, is bijzonder zonnig en voorzien van een groot, handmatig zonnescherm (groen/wit gestreept doek, handmatig) over de gehele breedte. Er is geen inkijk van achterburen en de tuin beschikt over een achterom. Aan de achterzijde van de woning is voldoende parkeergelegenheid, waardoor het vrije uitzicht aan de voorzijde optimaal is.

Bijzonderheden:
-Bouwjaar 1980, woonoppervlakte ca 100 m2, perceel 114 M2
-Voordeur met zijraam & gehele achterzijde (Antraciet) kunststof met HR-glas 2021
-Voorzijde hardhout met dubbelglas (1 raam enkelglas)
-Eerste verdieping achter, elektrische screens 2021
-Master bedroom voorzien van airco 2021
-Gehele achtergevel opnieuw gevoegd en geïmpregneerd 2021
-Toilet BG vernieuwd in 2023
-Moderne keuken met inbouw apparatuur 2022 (hoek opstelling)
-BG Massief houten planken vloer
-Woonkamer voorzien van openhaard
-Achtergevel voorzien van zonnescherm (handmatig en groen/wit gestreept)
-Berging in 2021 voorzien van wit Keralite
-Achtertuin op Zuidwest met achterom
-Prachtig vrij uitzicht aan de voorzijde en ook geen inkijk aan de achterzijde
-Beide velux-ramen op zolder zijn lek & klein raampje in badkamer is aan vervanging toe
-CV ketel van REMEHA 2019
-Energie-label B
-Overdracht i.o. aanvang Juli 2026

Alle voorzieningen zoals scholen, sportfaciliteiten, winkels, restaurants en meer zijn in de directe omgeving te vinden. De gemeente Nieuwerkerk aan den IJssel biedt daarnaast veel mogelijkheden op het gebied van natuur en recreatie. De ligging is uiterst gunstig en centraal: grote steden in de Randstad zoals Rotterdam, Den Haag en Schiphol zijn snel bereikbaar.

Toelichtingsclausule NEN2580:
De meetinstructie is gebaseerd op de NEN2580 en bedoeld om een uniforme manier van meten toe te passen voor het vaststellen van de gebruiksoppervlakte. Interpretatieverschillen, afrondingen of beperkingen kunnen echter leiden tot afwijkingen.

* De gegeven informatie is met zorg samengesteld, maar er wordt geen aansprakelijkheid aanvaard voor onvolledigheid, onnauwkeurigheid of gevolgen daarvan. Alle maten en oppervlakten zijn indicatief.

* Er is pas overeenstemming zodra de door FEMME MAKELAARS opgestelde koopovereenkomst door beide partijen is beoordeeld en ondertekend.

Kenmerken