Beschrijving

Wonen in een modern en ruim hoek-herenhuis op een schitterende locatie, met meer dan 200 m² woonoppervlak. Deze uitstekend onderhouden en strak afgewerkte woning telt drie verdiepingen (de recent toegevoegde derde laag dateert uit 2025) en biedt een vrij uitzicht over groen en waterpartijen. Kenmerkend voor deze woning zijn het licht, de ruimte en de prachtige vergezichten. Er is veel te ontdekken: een royale woonkamer, twee badkamers, drie aparte toiletten, een gezellige tuin en een dubbele garage.
Alle voorzieningen die u nodig heeft – winkels, scholen, kinderopvang, sportfaciliteiten en recreatie – liggen binnen handbereik. Vanuit het geliefde Waterrijk bereikt u eenvoudig de A12 en A2.

Indeling:

Begane grond:
Bij binnenkomst de ruime entree met garderobe, die toegang geeft tot een toiletruimte, twee kamers en een riante bijkeuken/wasruimte. De eerste kamer doet dienst als kantoor; de tweede wordt gebruikt als hobby- en sportkamer. De bijkeuken/wasruimte heeft aansluitingen voor wasmachine en droger en beschikt over veel bergruimte dankzij een kastenwand. Een deur vanuit deze ruimte leidt naar de parkeergarage met een dubbele garagebox voorzien van een elektrische garagedeur en loopdeur. Vanuit de entree wordt via de trap de woonverdieping bereikt. De vloer bestaat deels uit antracietgrijze tegels en deels uit laminaat. De wandafwerking  is strak gestuct en het plafond is gespoten.

Eerste verdieping:
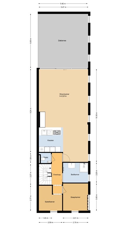
Hier bevindt zich de overloop, die toegang biedt tot het toilet, de woonkamer met keuken aan de achterzijde, een badkamer en twee kleinere slaapkamers aan de voorzijde. Via een moderne zwarte deur met glas wordt de royale woonkamer bereikt, die dankzij de grote ramen bijzonder licht is en een fraai uitzicht biedt op het groen en het water – letterlijk levende schilderijen die met de seizoenen veranderen. De zithoek bevindt zich aan de achterkant en grenst aan de tuin, terwijl het eetgedeelte naast de keuken is gesitueerd. De moderne keuken met schiereiland is volledig uitgerust met inbouwapparatuur: een vijfpits-gasfornuis met afzuigkap, koelkast, vaatwasser, stoomoven, oven, warmhoud-lade en een natuurstenen aanrechtblad. De vloer is hier voorzien van antracietgrijze tegels met vloerverwarming, glad gestucte wanden en een gespoten plafond.

Tweede verdieping:
Deze stijlvol afgewerkte etage, volledig vernieuwd in 2025, heeft een overloop die toegang biedt tot drie slaapkamers, een luxe badkamer en een apart toilet. De master-bedroom ligt aan de achterzijde en heeft een dakterras; de andere twee slaapkamers bevinden zich aan de voor- en zijkant van het huis en zijn eveneens van goed formaat. De fraaie badkamer beschikt over een vrijstaand bad, een inloopdouche en een dubbel wastafelmeubel met daglichttoetreding en mooi uitzicht. Het separate toilet is uitgevoerd in dezelfde stijl en voorzien van een hangend toilet . Op deze verdieping is er ook een technische ruimte met onder andere een HR Intergas-ketel uit 2022 nieuwe mechanische ventilatie, vloerverwarming en bergruimte. De hele verdieping heeft vloerverwarming,  een lichte hoogwaardige PVC-vloer, strakke muren en plafonds en airconditioning.

Een leuk detail: de huidige eigenaren overwogen om van de gehele eerste verdieping een woon- en keukenruimte te maken, gezien de zeven slaapkamers. Hiervoor zouden de twee kleine slaapkamers zonder problemen opgeofferd kunnen worden. Er is zelfs een alternatieve plattegrond toegevoegd om dit idee te illustreren. Deze kamers zouden bijvoorbeeld samengevoegd kunnen worden tot een TV-kamer of een speelruimte voor de kinderen; de mogelijkheden zijn talrijk!


Tuin, garage en parkeren:
De sfeervolle daktuin biedt volop privacy en ruimte om te genieten van borrels, barbecues en spel. Daarnaast is er een ruime gemeenschappelijke binnentuin waar u gebruik van mag maken. De daktuin ligt op het zuidoosten en heeft een achterom. In de afgesloten parkeergarage – te openen met een afstandsbediening – zijn twee privéparkeerplaatsen beschikbaar, en rondom het huis is er eveneens voldoende parkeergelegenheid.


Bijzonderheden:
-Fraai afgewerkt hoek-herenhuis op een unieke locatie
-Bouwjaar 2009, tweede verdieping uit 2025, ruim 200 m² woonoppervlak en perceel van 134 m²
-Volledig voorzien van kunststof kozijnen met HR++ glas en dubbelglas
-Vloerverwarming, behalve op de begane grond en één slaapkamer
-Twee badkamers, drie separate toiletten
-Mooie daktuin met privacy en fraai uitzicht plus dakterras
-Gebruik van de gezamenlijke binnentuin met speelmogelijkheden voor kinderen
-Dubbele garage met elektrische garagedeur (2020)
-Goede staat van onderhoud
-Alarm aanwezig 
-11 zonnepanelen (375MS) met Enphase micro-omvormers (2022)
-Verbruik: gas altijd onder de 1000m3/jaar, elektriciteit vrijwel break-even met de opbrengst zonnepanelen
-VVE met maandelijkse bijdrage van €20 voor onderhoud van de binnentuin
-Energielabel A of  A+
-Overdracht in overleg,  eind Q3 2026

Ligging en omgeving:
De woning ligt in het populaire Waterrijk, vlak bij recreatieplas Cattenbroek. Waterrijk kenmerkt zich door een breed scala aan woningtypes, van strak tot klassiek en hypermodern. Alle belangrijke voorzieningen zijn dichtbij: scholen, station, sportvelden, winkelcentrum Snel & Polanen en uitvalswegen. Het historische centrum van Woerden is per fiets bereikbaar. Door de centrale ligging en goede ontsluiting zijn Utrecht, Amsterdam, Schiphol en Den Haag binnen een half uur bereikbaar, waardoor Woerden een echte hotspot is binnen het Groene Hart.

*Wilt u dit prachtige hoek-herenhuis bezichtigen? Dien uw aanvraag gerust in via FUNDA; wij kijken ernaar uit u persoonlijk te ontmoeten en rond te leiden!*

Toelichtingsclausule NEN2580:
De meetinstructie is gebaseerd op de NEN2580 en bedoeld om een uniforme manier van meten toe te passen voor het vaststellen van de gebruiksoppervlakte. Interpretatieverschillen, afrondingen of beperkingen kunnen echter leiden tot afwijkingen.

* De gegeven informatie is met zorg samengesteld, maar er wordt geen aansprakelijkheid aanvaard voor onvolledigheid, onnauwkeurigheid of gevolgen daarvan. Alle maten en oppervlakten zijn indicatief.

* Er is pas overeenstemming zodra de door FEMME MAKELAARS opgestelde koopovereenkomst door beide partijen is beoordeeld en ondertekend.

Kenmerken