Beschrijving
Fraai & karakteristiek herenhuis in het mooie historische hart van de stad. De woning is voorzien van vele authentieke details zoals glas-in-lood ramen, ‘en suite’ deuren en mooie oude gerenoveerde deuren en toch voorzien van de gemakken van de huidige moderne tijd. Deze woning is namelijk in 2013 fraai gerenoveerd met behoud van vele prachtige details. In 2024 is er maar liefst een geheel nieuw dak geplaatst met zonnepanelen op dit fraaie herenhuis. Het is o.a. voorzien van een sfeervolle woonkamer met "ensuite-deuren", moderne keuken, 3 riante slaapkamers, een enorme open ruimte op zolder waar met alle gemak een ruime overloop en een riante 4de slaapkamer gecreëerd kan worden, 2 badkamers een een zonnige stadstuin. En dit alles op loopafstand van alle mogelijke benodigdheden als oa het station, scholen en bv gezellige terrassen en leuke boutiques.
Indeling
Begane grond:
Langgerekt entree, vestibule met meterkast, kelderdeur naar een kelder, trapopgang en toiletruimte. De betegelde toiletruimte is voorzien van een wandcloset en fontein. Vanuit deze hal wordt de sfeervolle woonkamer bereikt met hoge plafonds en ‘ensuite’ deuren gelegen aan de voorzijde van het huis. Vanuit deze hal is middels een andere deur ook de keuken en het fraaie eetgedeelte te bereieken. De moderne lichte inbouwkeuken met een (schier) eiland bevindt zich aan de achterzijde van de woning. De keuken is voorzien van diverse inbouw apparatuur, zoals oa 4-pits gaskookplaat, combimagnetron, magnetron, vaatwasser, afzuigkap, aansluiting voor een heetwater-kraan en een mooi composiet aanrechtblad. Het sfeervolle eetgedeelte bevindt zich ook aan de achterzijde en heeft zicht op de tuin. De zonnige stadstuin is bereikbaar middels de openslaande deuren bij het eetgedeelte en de separate loopdeur in de keuken.
De gehele begane grond is voorzien van vloerverwarming en de het woon- en eetgedeelte zijn voorzien van een fraaie houten visgraad vloer. Alle wanden incl de hoge plafonds zijn voorzien van strak stucwerk.
1ste verdieping:
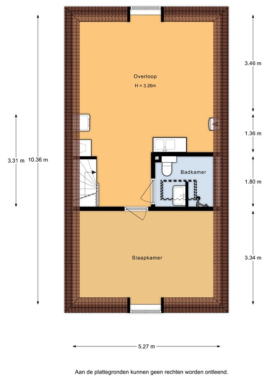
Via de mooie trapopgang wordt de overloop op de 1ste verdieping bereikt, welke toegang biedt tot 2 ruime slaapkamers, een separaat toilet en een ruime goed geouttileerde badkamer. Deze lichte badkamer beschikt oa een hoekbad, dubbel wastafelmeubel, inloopdouche, verwarmde spiegel en daglicht toetreding. De zeer riante master-bedroom bevindt zich aan de voorzijde van de woning en beschikt over een walkin-closet. Moderne toiletruimte en een slaapkamer aan de achterzijde met zicht op de stadstuin.
Ook deze verdieping kent hoge plafonds is voorzien van strak stucwerk en qua vloerafwerking is gekozen voor een mooie laminaatvloer (muv de badkamer en het toilet).
2de verdieping:
Bereikbaar via een vaste gelakte trap bereiken we de 2e verdieping. Ruime zolderverdieping met een speelse slaapkamer aan de voorzijde van 18 m², badkamer met wandcloset, inloopdouche en wastafelmeubel. Aan de achterzijde van de zolder is het mogelijk om de riante 4e slaapkamer te realiseren. Verder op deze verdieping is de centrale verwarmingsketel, de wasmachine en droger aansluiting en mechanische ventilatie box.
Ook hier de wanden en plafonds weer voorzien van strak stucwerk en ook de vloer op deze etage is voorzien van een laminaat vloer.
Tuin en parkeer gelegenheid:
De ruime stadstuin welke is gelegen op het zuid-oosten biedt voldoende zon- en/of schaduw plekken. Onze cliënten hebben een parkeervergunning a € 19,20 per maand en er is ook de mogelijkheid om nabij overdekt te parkeren in parkeergarage Castellum de kosten aldaar bedragen circa € 16 per auto per maand.
Bijzonderheden:
• Bouwjaar ca 1898
• Vele fraaie authentieke details
• Geheel gerenoveerd in 2013
• Gehele dak vernieuwd in 2024
• Hardhouten kozijnen voorzien van HR++ isolatieglas
• Buitenschilderwerk aan de achterzijde is gedaan in 2023
• Nieuwe elektra installatie aangebracht inclusief de groepenkast
• Nieuwe water- gas- en rioleringsleidingen geïnstalleerd in 2013
• De woning is voorzien van geïsoleerde vloer- spouwmuur- en dakisolatie
• Qua ventilatie is de woning voorzien van een inpandig systeem voor het toilet op de BG en de badkamers op de 1e en 2e etage
• Luxe sanitair met inbouwkranen en fraaie lichte keuken
• De gehele BG is voorzien van vloerverwarming
• Openslaande deuren vanuit het eetgedeelte naar de tuin
• Zonnepanelen 5 stuks bouwjaar 2024 & een zonneboiler 2013
• Nefit Top-Line c.v. ketel bouwjaar 2013
• Voorbereiding openhaard kanaal van woonkamer naar dak
• Op de 2de verdieping is de 2e ruime slaapkamer eenvoudig realiseerbaar
• Alle radiatoren zijn voorzien van het elektronische "EVO home systeem"
• Elektrische vloerverwarming in beide badkamers
• Rookmelders
• Alle dakgoten zijn van koper
• Energielabel A
• Overdracht in overleg eind Q4 2025
Omgeving:
Het is meer dan heerlijk vertoeven in de gezellige historische vestingstad Woerden. Woerden wordt niet voor niets de hoofdstad van het “Groene Hart” genoemd. Het is centraal gelegen in de randstad, de grote randsteden zoals Utrecht, Gouda, Rotterdam en Amsterdam zijn vlot bereikbaar en Woerden beschikt over een treinstation.
Het centrum heeft een gezellig kerkplein met diverse restaurants, wijnbars en winkels. Op het kerkplein worden door het jaar heen, diverse activiteiten voor jong en oud georganiseerd. In de Voorstraat, de Rijnstraat en de diverse gezellige zijstraatjes een diversiteit van winkels.
In de omgeving van Woerden mogelijkheid tot wandelen en fietsen langs de rivier de Oude Rijn of door de Polders. Ook liggen de fraaie Reeuwijkse- en Nieuwkoopse plassen op fietsafstand. Onder de gemeente Woerden vallen ook de dorpen Harmelen, Kamerik en Zegveld ieder met hun eigen charmante identiteit.
***WILT U DIT STIJLVOLLE & RUIME HERENHUIS KOMEN BEZICHTIGEN? WIJ ZIEN UW BEZICHTIGINGSAANVRAAG VIA FUNDA GRAAG TEGEMOET EN KIJKEN ERNAAR UIT U ROND TE MOGEN LEIDEN IN DEZE SMAAKVOLLE WONING! ***
Toelichtingsclausule NEN2580
De meetinstructie is gebaseerd op de NEN2580. De meetinstructie is bedoeld om een meer eenduidige manier van meten toe te passen voor het geven van een indicatie van de gebruiksoppervlakte. De meetinstructie sluit verschillen in meetuitkomsten niet volledig uit, door bijvoorbeeld interpretatieverschillen, afrondingen of beperkingen bij het uitvoeren van de meting.
* Deze informatie is door ons met de nodige zorgvuldigheid samengesteld. Er wordt echter geen enkele aansprakelijkheid aanvaard voor enige onvolledigheid, onjuistheid of anderszins, dan wel de gevolgen daarvan. Alle opgegeven maten en oppervlakten zijn indicatief.
* Er is pas overeenstemming bereikt op het moment dat de door FEMME MAKELAARS opgestelde koopovereenkomst door beide partijen is beoordeeld en ondertekend.
Plattegronden
Jan de Bakkerstraat 8 - Situatie - 2D.jpg
Jan de Bakkerstraat 8 - Begane grond - 2D.jpg
Jan de Bakkerstraat 8 - 1e verdieping - 2D.jpg
Jan de Bakkerstraat 8 - 2e verdieping - 2D.jpg
Jan de Bakkerstraat 8 - Situatie - 3D.jpg
Jan de Bakkerstraat 8 - Begane grond - 3D.jpg
Jan de Bakkerstraat 8 - 1e verdieping - 3D.jpg
Jan de Bakkerstraat 8 - 2e verdieping - 3D.jpg
Jan de Bakkerstraat 8 - Kelder - 2D.jpg
Jan de Bakkerstraat 8 - Kelder - 3D.jpg