Beschrijving
Mooie uitgebouwde en goed afgewerkte tussenwoning. De afgelopen jaren is deze woning "bijna geheel" gerenoveerd. Een ruime woonkamer met uitbouw en openslaande deuren richting de knusse tuin. Vier fraaie slaapkamers, de kleine badkamer diende nog aanbod te komen qua verbouwing, de nieuwe badkamer zou gesitueerd worden in de kleinste slaapkamer en de huidige badkamer zou wasruimte worden .... dit projectje kan naar eigen smaak afmaakt worden? De woning is voorzien van twee nieuwe dakkapellen, waardoor er twee speelse zolderkamers gecreëerd zijn. Dit alles op een gewilde locatie in de "Bloemen & Bomen buurt" nabij de mooie Singel en natuurlijk het centrum. (Garage is niet incl. deze is evt. los te koop!)
Indeling:
Begane grond:
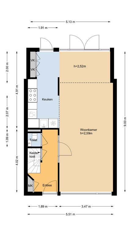
Ruime en licht entree met garderobe hoek, meterkast (11 groepen & 3 aardlekschakelaars), toilet, ruime kelderkast en trapopgang naar de eerste verdieping. Via de entree wordt de ruime lichte uitgebouwde woonkamer bereikt. De uitbouw is voorzien van fraaie zwart stalen puien (met openslaande deuren en een additionele loopdeur). Het zitgedeelte bevindt zich aan de voorzijde en heeft zicht op de straat. De witte keukenopstelling (L-vorm) met zwart/antraciet composiet blad is gesitueerd aan de achterzijde. Hier bevindt zich ook het eetgedeelte met uitzicht op de tuin. De keuken is voorzien van diverse inbouwapparatuur: o.a. koelkast, vrieskast, vaatwasser en 6 pits gasfornuis met grote oven eronder, afzuigkap en combi-oven/magnetron. De fraaie stalen openslaande deuren geven toegang tot de knusse & zonnig gelegen tuin. Er is een mooi elektrisch zonnescherm (2023) geplaatst over de gehele breedte in een grijze streep.
De gehele begane grond is voorzien van vloerverwarming en de woonkamer is uitgevoerd met een fraaie visgraat PVC-vloer, keuken en entree zijn voorzien van antraciet/zwarte tegels. De wand- en plafond afwerking is glad gestukt (met uitzondering van het plafond boven de keuken).
1ste verdieping:
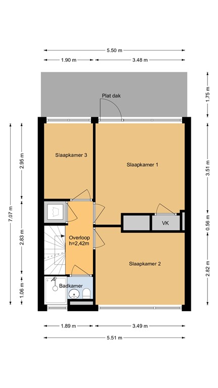
De overloop biedt toegang aan momenteel drie slaapkamers, de kleine badkamer en ruimte met wasmachine en droger opstelling. Aan de achterzijde bevinden zich de master-bedroom met loopdeur richting het platte dak. Ook aan de achterzijde het kleinste kamertje, waar het plan was om de nieuwe badkamer te laten plaatsen. Dit is reeds te zien aan het nieuwe kozijn met matglas. Het plan was de huidige badkamer om te verbouwen als waskamer. Aan de voorzijde een ruime slaapkamer en de huidige kleine badkamer met toilet, wastafel, douche en daglichttoetreding.
Op deze verdieping ook strak gestukte muren en plafonds. De nieuw te leggen PVC vloer (zelfde als op de 2de verdieping) is aanwezig, maar nog niet gelegd ivm de nieuwe badkamer.
2de verdieping:
Dit betreft een goed ingedeelde zolderverdieping met kleine voorzolder en twee speelse slaapkamers. Beide zijn voorzien van een dakkapel (november 2024), waarvan de dakkapel achter is voorzien van elektrische screens. Op de overloop bevindt zich de cv-ketel (Nefit 2011).
OFFICIEEL betreft deze verdieping "OVERIGE INPANDIGE RUIMTE", vanwege het feit dat bewoners hebben gekozen voor een zwevende (Fermacell) vloer van ruim 3 cm dik om zo het contactgeluid naar de onderliggende slaapkamers te verminderen. Wanneer u deze zwevende vloer zou verwijderen geldt deze verdieping wel als "gebruiksoppervlakte wonen" (het verschil betreft 2 cm).
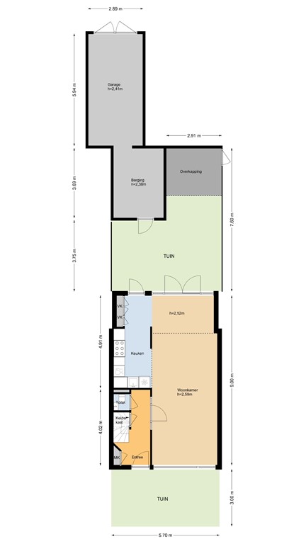
Tuin & parkeergelegenheid:
Keurige voor- en achtertuin, deze zijn grotendeels betegeld en voorzien van een houten overkapping. De achtertuin is op het zonnige zuiden gelegen. In de achtertuin is een buitenkraan aanwezig. Links achter in de tuin bevindt zich de ruime stenen schuur (voorzien van elektra). Met daarachter de later bijgekochte garage (aangekocht 2019). De berging en garage zijn momenteel doorgebroken en het betreft dus nu één grote open ruimte. DE GARAGE IS NIET INCL. DEZE KAN ER EVT BIJGEKOCHT WORDEN! (a € 49.000 KK) Rechts achter in de tuin is een overkapping gecreëerd en daar bevindt zich tevens het achterom. Er is voldoende openbare parkeergelegenheid rondom de woning.
Locatie:
De woning is gelegen zeer nabij het historische centrum van Woerden en op enkele meters van de singel. Deze buurt kenmerkt zich door een diversiteit aan woningen. Verder bevinden alle mogelijke benodigdheden als winkels, scholen, sportclubs, station ect zich op loop- en fietsafstand. Door de ligging in het Groene hart van de randstad is de ligging ook uiterst centraal t.o.v. diverse grote steden als o.a. Utrecht, Rotterdam, Den Haag en Amsterdam.
Additionele punten:
-Bouwjaar 1964 , uitbouw met fraaie stalen puien dateert van 2022
-Geheel voorzien van nieuwe kunststof kozijnen met HR++ glas, aug 2024 (ook de voordeur en de openslaande garage deuren)
(kozijn in huidige badkamer nog niet vervangen, nieuwe kozijn is wel aanwezig)
-2 nieuwe kunststof dakkapellen met HR ++ glas nov 2024 (de dk aan de achterzijde is voorzien van elektrisch screen)
-BG voorzien van vloerverwarming en de overige ruimtes van radiatoren
-Trap BG ---> 1ste verdieping is bekleed met eiken overzet-treden
-Mooi elektrisch zonnescherm over gevel-breedte 2023
-Meterkast is geheel vervangen
-Geheel strak gestukt en vloer op BG en 2de verdieping voorzien van fraai PVC (PVC voor 1ste verdieping is aanwezig)
-PVC op BG in visgraad en op verdieping(en) recht
-Ketel van merk: Nefit 2011
-Garage NIET incl. deze is evt. los te koop a € 49.000 KK (Woerden B 7881)
Bij koop van alleen de woning wordt de scheiding tussen berging en garage weer hersteld.
-Energielabel C
-Overdracht in overleg medio juli 2025
***Wilt u de laatste puntjes op de "i'" zetten in deze keurige uitgebouwde tussenwoning zeer nabij het centrum Woerden. Wij ontmoeten u graag tijdens een bezichtiging! Graag via FUNDA uw bezichtiging aanvragen & wij kijken ernaar uit u rond te mogen leiden***
____________________________________________________________________________________________________________________________________________________________________
* Deze informatie is door ons met de nodige zorgvuldigheid samengesteld. Er wordt echter geen enkele aansprakelijkheid aanvaard voor enige onvolledigheid, onjuistheid of anderszins, dan wel de gevolgen daarvan. Alle opgegeven maten en oppervlakten zijn indicatief.
* Er is pas overeenstemming bereikt op het moment dat de door FEMME MAKELAARS opgestelde koopovereenkomst door beide partijen is beoordeeld en ondertekend.
De meetinstructie is gebaseerd op de NEN2580. De meetinstructie is bedoeld om een meer eenduidige manier van meten toe te passen voor het geven van een indicatie van de gebruiksoppervlakte. De meetinstructie sluit verschillen in meetuitkomsten niet volledig uit, door bijvoorbeeld interpretatieverschillen, afrondingen of beperkingen bij het uitvoeren van de meting.
Plattegronden
Situatie Narcisstraat 3 (2D).jpg
BG Narcisstraat 3 (2D).jpg
1e Narcisstraat 3 (2D).jpg
2e Narcisstraat 3 (2D).jpg
Situatie Narcisstraat 3 (3D).jpg
BG Narcisstraat 3 (3D).jpg
1e Narcisstraat 3 (3D).jpg
2e Narcisstraat 3 (3D).jpg
Berging:garage Narcisstraat 3 (2D).jpg
Berging:garage Narcisstraat 3 (3D).jpg