| Prijs | € 825.000,- k.k. |
| Type object | Woonhuis, herenhuis, eind woning |
| Perceeloppervlakte | 95 m² |
| Woonoppervlakte | 197 m² |
| Aanvaarding | In overleg |
| Status | Verkocht |
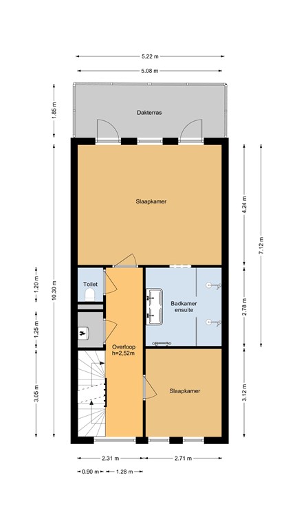
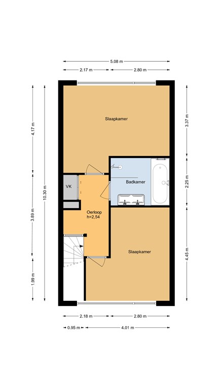
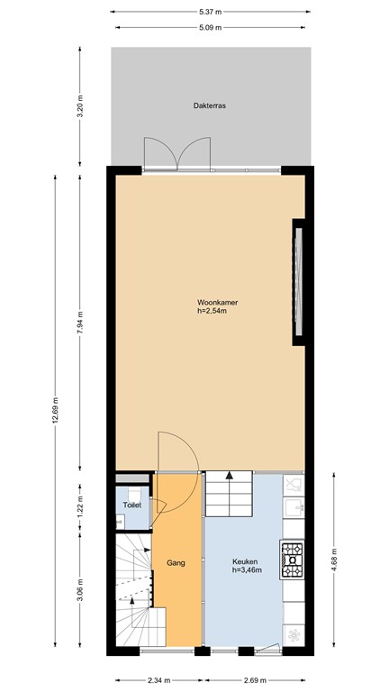
Wonen met “allure” in dit prachtige zeer hoogwaardig afgewerkte "Heren-hoekhuis". Het betreft hier werkelijk een droomhuis op elk vlak. Gelegen in de populaire wijk ‘Waterrijk’ in Woerden ligt deze zeer ruime VIER-LAAGSE woning met o.a. een ruime stijlvolle woonkamer, vier slaapkamers, twee badkamers, twee overdekte parkeerplaatsen en twee fraaie terrassen op het zuiden gelegen aan de ruime gezamenlijke binnentuin. Tevens gelegen nabij de populaire ‘Cattenbroekerplas’ voor allerhande waterplezier. De inhoud is ruim 675 m3, het woonoppervlakte bedraagt ca 197 m2 en dit geheel is gelegen op een perceel van 95 m2. Indeling: Hal/entree met meterkast, garderobe, trapopgang en toegang tot de multifunctionele ruimte waar zich o.a. wasmachine- en drogeraansluiting en een ruime kastenwand bevindt. Deze ruimte is bruikbaar als o.a. bijkeuken, wasruimte, kantoor, speel-/werkkamer of combinatie hiervan. Het entree biedt tevens toegang tot de parkeerkelder met twee eigen parkeerplekken en (fietsen)berging . 1e verdieping: Zeer fraaie overloop met moderne zwarte stalen puien met glas en een keurige toiletruimte. Woonkamer met veel lichtinval voorzien van hoogwaardige eiken visgraat vloer en via openslaande deuren toegang tot het zonneterras op het zuiden. Hier kunt u heerlijk genieten van de middag- en avondzon. Aan de voorzijde via een trapje met vier treden is de keuken te bereiken. Deze moderne inbouw keuken is voorzien van diverse inbouwapparatuur (o.a. koelkast/vriezer, 5-pits gaskookplaat, combi-oven, oven, vaatwasser, afzuigkap, heet-waterkraan en composiet aanrechtblad). 2e verdieping: Overloop met vaste kast met opstelplaats HR ketel (Vaillant 2024). Twee slaapkamers waarvan de riante masterbedroom is gelegen aan de achterzijde met een mooie afgewerkte badkamer-ensuite. Vanaf deze masterbedroom is er toegang tot een ruim terras met zicht op de binnentuin. De badkamer-ensuite is voorzien van een dubbele inloopdouche, dubbel wastafel-meubel, handdoekradiator en vloerverwarming. Verder op deze verdieping nog een kleinere slaapkamer aan de voorzijde welke momenteel in gebruik is als walkin-closet. 3e verdieping: Overloop met vaste kastenwand. Deze overloop biedt toegang tot de luxe badkamer en twee zeer riante slaapkamers, waarvan 1 aan de voor- en 1 aan de achterzijde van de woning. De badkamer is voorzien van een inloopdouche, een ligbad en een dubbel wastafel-meubel. De binnentuin is alleen toegankelijk voor de woningen eromheen. U kunt zelf heerlijk op uw terras genieten, terwijl de kinderen ongestoord in de binnentuin spelen. De jonge wijk Waterrijk is erg populair en wordt in de zomer vooral gedomineerd door waterpret, als zwemmen, suppen en varen. De plas en restaurant "The Edge" trekt veel mensen uit de omgeving die er komen borrelen, eten, zonnebaden en zwemmen. In het vogelgebied wordt gewandeld. Op loopafstand zijn drie basisscholen en Woerden beschikt over twee middelbare scholen die het hele spectrum aanbieden van vmbo tot vwo. Het centrum van Woerden is erg gezellig en wordt ook wel de hoofdstad van het Groene Hart genoemd. Het centrum en het station zijn op fietsafstand bereikbaar. Ook ligt Woerden super centraal gelegen ten opzichte alle andere grote steden van de randstad. Bijzonderheden: - Bouwjaar 2008 - Inhoud woonhuis 678m³, gebruiksoppervlakte 197m², perceeloppervlakte 95m² eigen grond - Hardhouten kozijnen voorzien van dubbel- en HR++ - BG en 1ste verdieping voorzien van vloerverwarming en de 3de en 4de verdieping van radiatoren - Zonnige terrassen op het zuiden aan fraaie gemeenschappelijke binnentuin - 2 parkeerplaatsen in de gezamenlijke parkeergarage en fietsenberging - Elektrisch zonnescherm aan de achterzijde - De gehele achterzijde is voorzien van elektrische rolluiken - De woonkamer en de master-bedroom zijn voorzien van design airconditioners - Gehele wand- en plafondafwerking is glad gestukt en de verlaagde plafonds zijn voorzien van inbouwspots - De vloerafwerking betreft op de BG en de 1ste verdieping massief eikenvisgraat vloer (met zwarte bies) - De 2de en 3de verdieping zijn muv van de badkamers & toilet voorzien van mooi tapijt - HR-ketel Vaillant bouwjaar 2024 - Bouwjaar keuken 2024, badkamers & toiletten 2019 en airco's 2019 - 8 groepen, 2 aardlek, slimme-meter en glasvezel - Voorzien van alarm-installatie & camera's 2020 - De woning is volledig geïsoleerd en beschikt over energielabel A - Servicekosten ca. € 55,- per maand - Overdracht in overleg Q2 2025 ***Wilt u dit luxueuze heren-hoekhuis komen bezichtigen? Graag via FUNDA uw bezichtiging aanvragen & wij kijken ernaar uit u rond te mogen leiden*** Toelichtingsclausule NEN2580 De meetinstructie is gebaseerd op de NEN2580. De meetinstructie is bedoeld om een meer eenduidige manier van meten toe te passen voor het geven van een indicatie van de gebruiksoppervlakte. De meetinstructie sluit verschillen in meetuitkomsten niet volledig uit, door bijvoorbeeld interpretatieverschillen, afrondingen of beperkingen bij het uitvoeren van de meting. * Deze informatie is door ons met de nodige zorgvuldigheid samengesteld. Er wordt echter geen enkele aansprakelijkheid aanvaard voor enige onvolledigheid, onjuistheid of anderszins, dan wel de gevolgen daarvan. Alle opgegeven maten en oppervlakten zijn indicatief.
| Referentienummer | 00110 |
| Vraagprijs | € 825.000,- k.k. |
| Inrichting | Ja |
| Inrichting | Gestoffeerd |
| Status | Verkocht |
| Aanvaarding | In overleg |
| Aangeboden sinds | Zaterdag 11 januari 2025 |
| Laatste wijziging | Donderdag 27 februari 2025 |
| Type object | Woonhuis, herenhuis, eind woning |
| Soort bouw | Bestaande bouw |
| Bouwperiode | 2008 |
| Dakbedekking | Bitumen |
| Type dak | Platdak |
| Keurmerken | Aangepaste woning |
| Isolatievormen | Dubbel glas HR-glas Volledig geïsoleerd |
| Perceeloppervlakte | 95 m² |
| Woonoppervlakte | 197 m² |
| Inhoud | 678 m³ |
| Oppervlakte gebouwgebonden buitenruimte | 27 m² |
| Aantal bouwlagen | 4 |
| Aantal kamers | 5 (waarvan 4 slaapkamers) |
| Aantal badkamers | 2 (en 2 aparte toiletten) |
| Ligging | Aan park Beschutte ligging Dichtbij openbaar vervoer In woonwijk Nabij school Nabij treinstation Nabij winkelcentrum |
| Energielabel | A |
| CV ketel | Vaillant |
| Warmtebron | Gas |
| Bouwjaar | 2024 |
| Eigendom | Eigendom |
| Aantal parkeerplaatsen | 2 |
| Aantal overdekte parkeerplaatsen | 2 |
| Warm water | CV-ketel |
| Verwarmingssysteem | Airconditioning Centrale verwarming Vloerverwarming (gedeeltelijk) |
| Ventilatie methode | Mechanische ventilatie |
| Badkamervoorzieningen Badkamer 1 | Douche Dubbele wastafel Inloopdouche Vloerverwarming |
| Badkamervoorzieningen Badkamer 2 | Dubbele wastafel Inloopdouche Ligbad Vloerverwarming |
| Parkeergelegenheid | Parkeerkelder |
| Heeft airco | Ja |
| Heeft een alarm | Ja |
| Heeft kabel-tv | Ja |
| Glasvezelaansluiting aanwezig | Ja |
| Telefoonaansluiting aanwezig | Ja |
| Beschikt over een internetverbinding | Ja |
| Heeft rolluiken | Ja |
| Heeft schuur/berging | Ja |
| Heeft zonwering | Ja |
| Heeft ventilatie | Ja |
| Kadastrale aanduiding | Woerden B 01 |
| Perceeloppervlakte | 95 m² |
| Omvang | Geheel perceel |
| Eigendomsituatie | Eigen grond |