Beschrijving
Wonen in een modern riant "Hoek-Herenhuis" op een meer dan unieke locatie in Het Carré, met maar liefst 223 m2 woonmeters? Strak afgewerkt en goed onderhouden 4-laagse hoekwoning direct aan de natuurplas met een vanzelfsprekend vrij en prachtig uitzicht! Deze ruime waterwoning aan de natuurplas in Waterrijk is voorzien van een dubbele garage aan huis op de begane grond. Verder is deze woning uitgerust met o.a. vijf slaapkamers, ruime leefkeuken met speelse erker en een lichte woonkamer. Beide hebben een fenomenaal uitzicht. De ligging van deze woning is echt uniek! Ook zijn alle voorzieningen op het gebied van winkels, scholen, kinderopvang, sport en recreatie binnen handbereik. Vanuit het populaire Waterrijk is er ook een goede ontsluiting richting de A12 en A2.
Indeling:
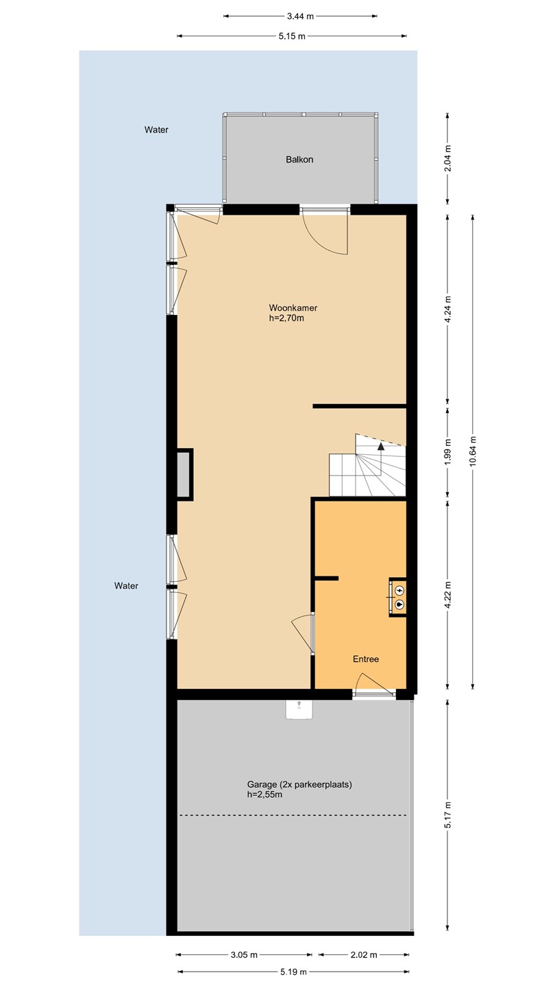
Begane grond:
Riante & vooral lichte woonkamer met een heerlijk vlonder-terras boven het water! Het uitzicht vanaf hier is werkelijk adembenemend en altijd anders.
Het terras is op het oosten gelegen met de rust en het uitzicht over de plas. Natuurlijk is genieten van het prachtige uitzicht van binnenuit ook gegarandeerd door de vele hoge raampartijen. De woonkamer is groot genoeg voor een relax gedeelte met grote bank en fauteuil en tevens nog een werkruimte waarbij er door het uitzicht aan inspiratie geen gebrek is. Op deze verdieping bevindt zich tevens de dubbele garage welke van elektrische kanteldeur, elektra en een uitstort-gootsteen met warm- en koudwater is voorzien. Qua vloerafwerking is hier gekozen voor een fraaie houten planken vloer en de wanden en het plafond zijn voorzien van spuitwerk.
1e verdieping:
Op deze woonlaag bevindt zich de voordeur die bereikbaar is via het privéterras, gelegen aan de rand van de wandelpromenade. Via de voordeur wordt de hal bereikt met hier een ruime toiletruimte met zwevend closet, urinoir en fonteintje. Via de hal wordt de riante woonkeuken bereikt met een moderne en goed geoutilleerde keukenopstelling. Deze Bulthaup keuken heeft onder andere een grote koelkast en aparte grote vriezer, stoomoven, warmhoudlades, oven/magnetron combi, keramische kookplaat, vaatwasser, quooker en afzuigkap (Betreft Miele apparatuur, muv ATAG vriezer). De keuken is uitgevoerd in mat wit met een robuust grijs composiete blad. Aan de achterzijde is een fraaie eethoek gesitueerd met zicht op de plas. De woonkeuken is erg licht door de hoge raampartijen in de woning en de "speelse erker" aan de achterzijde. Qua vloerafwerking is hier gekozen voor een antraciet grijze tegelvloer met vloerverwarming en de wanden en het plafond zijn voorzien van spuitwerk.
Aan de voorzijde van de woning bevindt zich een ruim privé-terras (dit terras is evt afsluitbaar voor kleine kinderen). Dit terras heeft een gunstige zonligging op het zuidwesten. Omdat het hier een hoekwoning betreft, is deze extra gunstig gelegen met veel privacy.
2e verdieping:
Via de hardhouten open trap in de woonkeuken wordt de eerste verdieping bereikt. De overloop biedt toegang tot drie slaapkamers, de badkamer en een separaat 2e toilet. Aan de achterzijde van de woning bevindt zich een ruime slaapkamer welke uitkijkt over de natuurplas. Aan de voorzijde bevindt zich de 2e slaapkamer welke momenteel in gebruik is als inloopkast. Deze hoog afgewerkte inbouwkast is op maat gemaakt en is voorzien van diverse gemakken zoals een gardarobelift voor de kleding en diverse lades. De 3e slaapkamer is ook aan de voorzijde gelegen. De badkamer is voorzien van een dubbele design wastafel, douchecabine met twee douchekoppen, een ligbad met whirlpool en een designradiator. Qua vloerafwerking is hier gekozen voor een grijze linoleum vloer (doet aan als een gietvloer) en de wanden en het plafond zijn voorzien van spuitwerk.
3e verdieping:
Via de hardhouten trap wordt de bovenste etage bereikt. De overloop hier biedt toegang tot twee ruime slaapkamers en de berg-/wasruimte. De bergruimte is zeer ruim en voorzien van aansluitpunten voor de wasmachine en de droger. De vierde slaapkamer is gelegen aan de voorzijde en is voorzien van een modern wastafelmeubel. Aan de achterzijde is de vijfde slaapkamer gelegen, hier veel lichtinval door de speelse raampartijen aan beide zijden. Vanuit deze kamer wederom een uiterst fraai uitzicht over de plas. Ook op deze etage een grijze linoleum vloer en de wanden en het plafond zijn voorzien van spuitwerk. In de ruime berging op deze etage is eventueel een 2de douche te creëren.
Bijzonderheden:
- Fraai afgewerkte hoekwoning op unieke locatie
- Voorzien van groot terras aan de voorzijde en een kleiner terras aan de achterzijde direct aan de plas
- Ruime & fraai aangelegde gezamenlijke binnentuin met o.a. speelmogelijkheden voor de kinderen
- Dubbele garage met aansluiting voor laadpaal t.b.v. elektrische auto
- In goede staat van onderhoud
- Voorzien van alarm
- Alle ramen zijn uitgevoerd als grote draai-/kiepramen met Frans balkon
- Voorzien van waterontharder
- Gehele voorzijde is voorzien van elektrische screens
- Honeywell EvoHome system
- 16 zonnepanelen (bouwjaar 2020)
- Gezonde VVE en een maandelijkse bijdrage van € 300 normaal, nu tijdelijk dit jaar € 400
- Overdracht begin nov 2025
De woning ligt binnen Het Carré, een complex met 35 Waterwoningen en 52 Panorama-appartementen, dat van de openbare weg is afgesloten en aan drie zijden gelegen is aan de natuurplas Breeveld. Binnen Het Carré bevinden zich een schitterende, gemeenschappelijke, onder architectuur aangelegde binnentuin met o.a. voor de kinderen een speeltuintje en een uit het zicht onttrokken parkeerstraat die alleen toegankelijk is voor bewoners en bezoekers.
Deze Waterwoning betreft een appartementsrecht. Voor het onderhoud aan de gemeenschappelijke delen, zoals de binnentuin, wandelpromenade, de parkeerstraat en het ketelhuis t.b.v. warmwater en blokverwarming, is een Vereniging van Eigenaren actief. De servicekosten hiervoor bedragen normaliter € 300 per mnd, echter in 2025 zijn deze tijdelijk € 400 per mnd. Daarnaast wordt er een voorschot van € 150,= per maand betaald voor warm water en verwarming, wat na afloop van het stookjaar verrekend wordt op basis van werkelijk verbruikte warmte.
Ligging en omgeving:
Gelegen in het populaire "Waterrijk" aan de stilte plas en zeer nabij de recreatieplas Cattenbroek. Waterrijk wordt getypeerd door een variëteit aan soorten woningen, van strak, klassiek, traditioneel tot hypermodern. Alle benodigde voorzieningen zijn aanwezig in en rondom deze wijk, zoals basisscholen en middelbare scholen, het station, sportvelden, winkelcentrum Snel & Polanen en uitvalswegen. Ook het fraaie historische centrum van Woerden is op fietsafstand. Door de centrale ligging en de uitvalswegen zijn Utrecht, Amsterdam, Schiphol en Den Haag met een half uur rijden bereikbaar. Dit maakt Woerden de ‘hotspot’ van het Groene Hart.
***Wilt u dit fraaie Hoek-Herenhuis komen bezichtigen, dan wij zien uw bezichtigings aanvraag graag via FUNDA tegemoet en kijken er naar uit u persoonlijk te ontmoeten en rond te leiden!***
Toelichtingsclausule NEN2580
De meetinstructie is gebaseerd op de NEN2580. De meetinstructie is bedoeld om een meer eenduidige manier van meten toe te passen voor het geven van een indicatie van de gebruiksoppervlakte. De meetinstructie sluit verschillen in meetuitkomsten niet volledig uit, door bijvoorbeeld interpretatieverschillen, afrondingen of beperkingen bij het uitvoeren van de meting.
* Deze informatie is door ons met de nodige zorgvuldigheid samengesteld. Er wordt echter geen enkele aansprakelijkheid aanvaard voor enige onvolledigheid, onjuistheid of anderszins, dan wel de gevolgen daarvan. Alle opgegeven maten en oppervlakten zijn indicatief.
* Er is pas overeenstemming bereikt op het moment dat de door FEMME MAKELAARS opgestelde koopovereenkomst door beide partijen is beoordeeld en ondertekend.